Plot 15 – The Newby sold


Meadow Rigg, Kendal

The Newby features an open-plan family kitchen/dining room with a peninsular breakfast bar. Glazed patio doors lead to the side garden. The living room looks out onto the rear garden via patio doors. A cloakroom, utility room, and double garage complete the accommodation on the ground floor level.

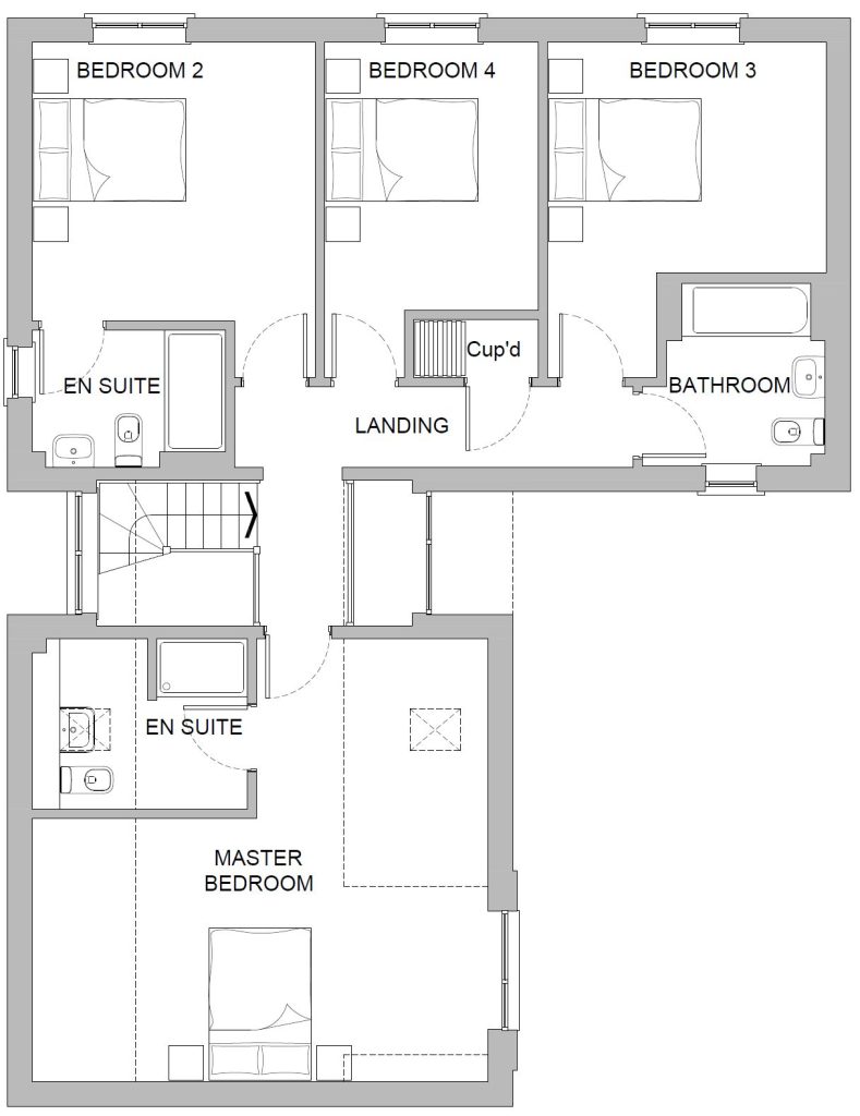
On the first floor, the master bedroom has sky lights to allow lots of light and an en-suite with a designer shower fittings, and taps with a gallery landing. There are a further 3 double bedrooms, one with an en-suite shower room. To complete the first floor, a spacious family bathroom.

Please note, the images and floorplans shown are for illustration purposes and may not be an exact representation of the end property. Please speak to a Sales Executive for more details.

 

  • Open plan kitchen/diner
  • Utility and cloakroom
  • 5 double bedrooms
  • 2 en-suites
  • Turfed front and rear gardens
  • Garage and Tegula block paved driveway
  • uPVC anthracite windows and French doors
  • 10-year LABC warranty