Plot 62 – Tunstall sold
The Tunstall is a stunning 4-bedroom detached home with plenty of space for the whole family.
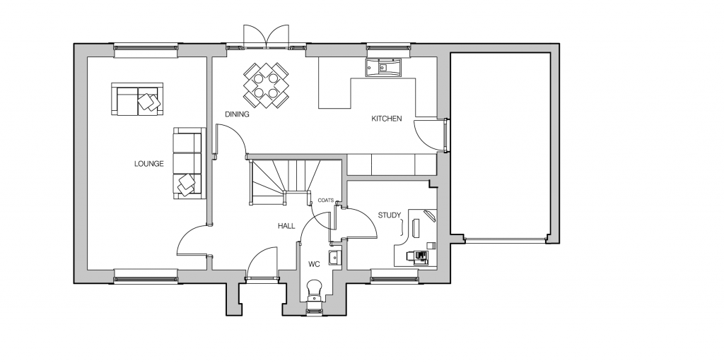
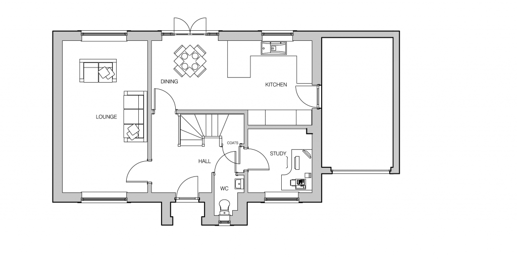
The Tunstall is a beautiful family home that provides space to entertain, live and grow. You’ll get the ‘I’m home feeling’ as soon as you step inside with an impressive open hallway and winding staircase. This home boasts an open plan kitchen/dining area with stylish breakfast bar and fully integrated appliances as standard. There are also a set of French doors that lead out to the patio area and the rear turfed garden, perfect for enjoying indoor/outdoor living.
A spacious lounge stretches the full depth of the house providing plenty of space for all the family and there’s a separate study that could be used as a playroom or snug too. For convenience there is a downstairs cloakroom and understairs cupboard.
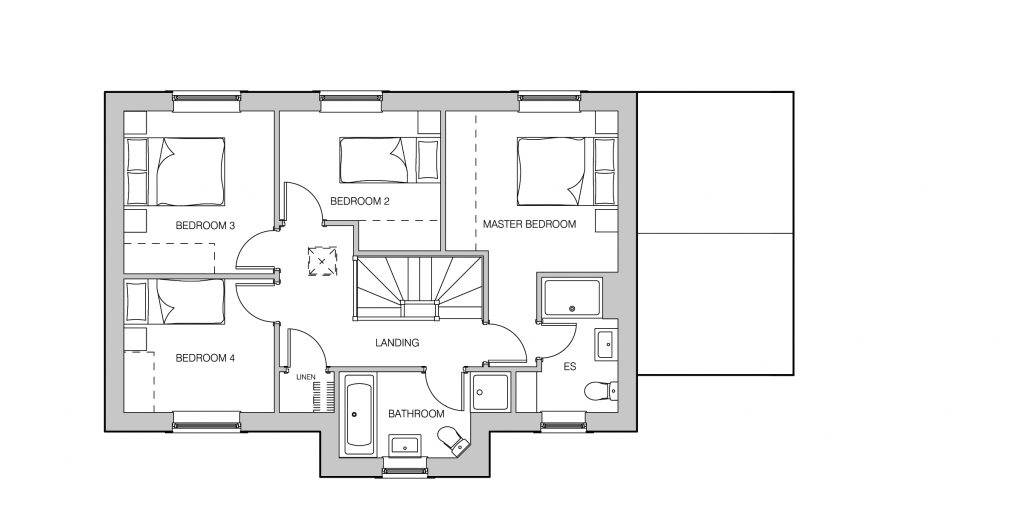
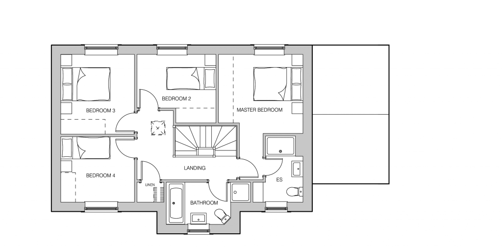
Head upstairs to a large central landing that connects to three generously sized bedrooms, a spacious family bathroom with bath and separate shower, and a master bedroom featuring a separate en-suite with large shower cubicle.
This home comes complete with a link-detached garage/detached/double garage (plot dependant) providing additional storage space. Externally, there is a block paved driveway, turfed gardens to the front and rear, and beautiful uPVC anthracite windows.
Please note, the images and floorplans shown are for illustration purposes and may not be an exact representation of the end property. Please speak to a Sales Executive for more details.
- Open plan kitchen/dining area with breakfast bar
- Fully integrated kitchen with appliances
- French doors to the patio and rear garden
- Spacious lounge
- Master bedroom with en-suite
- Garage with block paved driveway
Price: £350,000
Sqft: 1337
Beds: 4
Bathrooms: 3