Plot 7- Gelt sold


Farries Field, Stainburn

The Gelt is a beautiful 3-bedroom semi-detached home with plenty of space to grow with you. 

The heart of this home is the open plan living/dining area to the rear of the property, with French doors that open out onto a turfed garden and patio. This bright and airy space is the perfect place to host guests or to simply wind down on a evening. There is also a fully integrated kitchen with your choice of stylish cupboard and worktop styles, along with a range of quality appliances. To complete the ground floor, there is cloakroom and useful under-stairs storage.

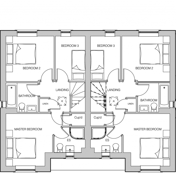
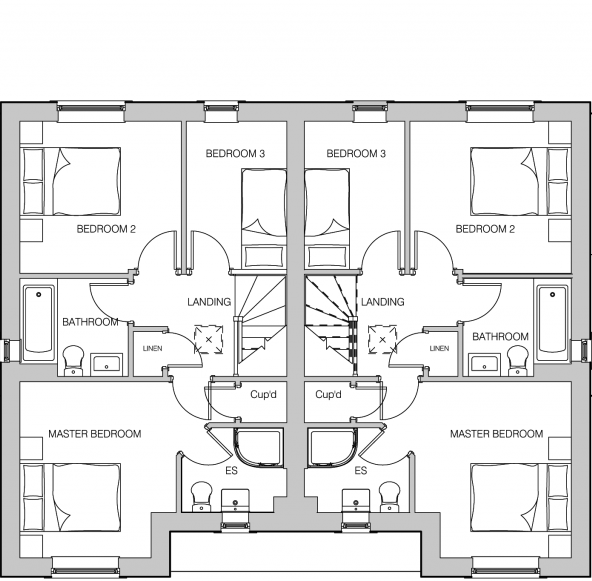
Head upstairs to the first floor where you’ll find three generous bedrooms. As well as a family bathroom, the Master Bedroom includes a modern en-suite, adding a touch of luxury and providing convenience if your home is busy. There are also two handy storage cupboards.

Externally, The Gelt comes with curb appeal featuring a small porch area, windows and doors in our trademark anthracite grey and a private driveway in Tegula blocked paving. Turfed gardens are also included, giving you peace of mind that everything is taken care of when you move in. Plus, some plots include an attached garage, providing even more storage space.

Please note, the images and floorplans shown are for illustration purposes and may not be an exact representation of the end property or plot. Please speak to a Sales Executive for more details.

  • Spacious lounge/dining area with French doors to the rear garden
  • Fully integrated kitchen with 'A' rated appliances as standard
  • Cloakroom and under-stairs storage
  • 3 bedrooms set around a central landing and family bathroom
  • Master bedroom with en suite shower room
  • Tegula block paved driveway
  • Turfed gardens to the front and rear
  • uPVC anthracite windows and French doors
  • A 10-year warranty