Plot 17 – The Sedgwick for sale


Olive Green View, Halton

The Sedgwick is an impressive 3-bedroom detached home with attractive panel features and a spacious interior.

This beautiful property makes the perfect family home with a large lounge spanning the length of the room that has plenty of room for everyone. This room also boasts sliding patio doors to let in lots of natural light and extend the living space into the rear garden.

The family kitchen/ dining area is the heart of the home and features a stylish breakfast bar, sliding doors to the garden – perfect for hosting, and a lovely bay window overlooking the front of the property. There’s a handy utility room connected to the kitchen which benefits from access to the garden, as well as a convenient cloakroom off the hallway.

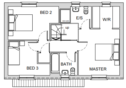
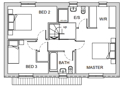
Upstairs, you’ll find two generous double bedrooms, a single bedroom and a family bathroom with modern sanitaryware. The master bedroom boasts a stylish dressing area with feature window as well as an en-suite shower room.

The distinctive exterior of this home features a blend of render and panelling with a porch area and anthracite grey windows for a characterful and timeless aesthetic in keeping with the idyllic surroundings. The Sedgwick includes a block paved driveway, detached garage and turfed gardens to the front and rear of the property.

Please note, the images and floorplans shown are for illustration purposes and may not be an exact representation of the end property or plot. Please speak to a Sales Executive for more details.

  • 3 good size bedrooms
  • Master bedroom with dressing area and en-suite
  • Open plan kitchen/diner
  • Fully integrated kitchen with appliances
  • Utility and cloakroom
  • Detached garage with Tegula block paved driveway
  • uPVC anthracite coloured windows
  • Turfed gardens to the front and rear
  • A 10 year LABC warranty