Plot 43 – The Ayside sold


Olive Green View, Halton

This exceptionally attractive stone-fronted 4 bedroom detached home (1576 sqft) with an integrated garage, benefits from a private front aspect so you can enjoy the beautiful views right from the front door.

The Ayside offers superb accommodation briefly comprising of entrance hallway and a bright lounge providing ample space for relaxation. The spacious upgraded Winchester family kitchen also features a breakfast/dining area ideal for entertaining, which in turn leads to a cloakroom and a utility room with useful side access.

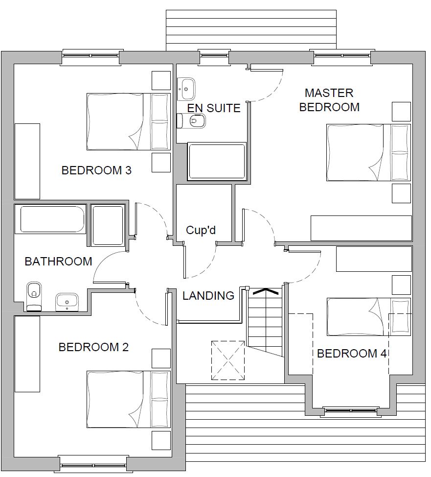
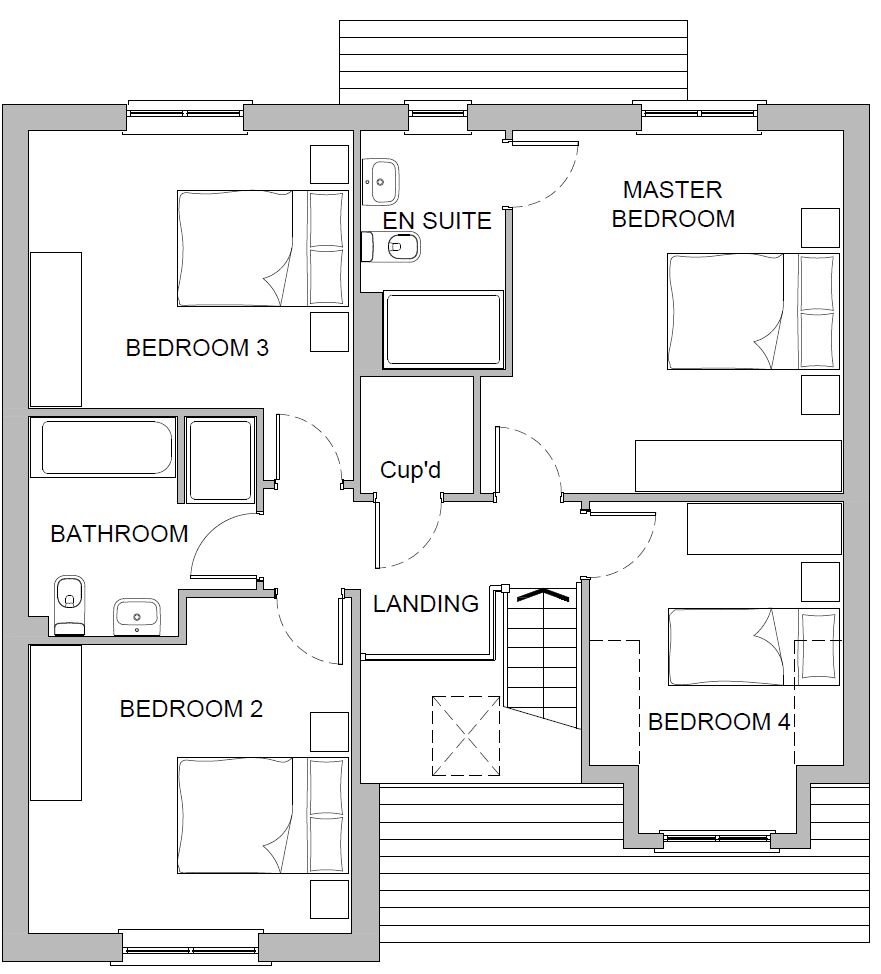
To the first floor are four generously sized bedrooms, a family bathroom and ensuite to the master bedroom offering comfort and privacy.

Further benefits include gated access to the rear garden, an integral or attached garage (plot dependant) which is accessed via the attractive Tegula block paved driveway.  An ideal residence set in a serene and peaceful environment.

 

  • Open aspect with attached garage
  • Large kitchen/diner
  • 4 great sized bedrooms
  • Fully integrated kitchen with appliances
  • Garage with Tegula block paved driveway
  • uPVC anthracite coloured windows
  • Turfed gardens to the front and rear
  • A 10 year LABC warranty

An attractive stone-fronted 4 bedroom detached home (1576 sqft) with an integrated garage.

The Ayside offers superb accommodation briefly comprising of entrance hallway, a bright lounge providing ample space for relaxation, a spacious family kitchen/breakfast/dining area ideal for entertaining, which in turn leads to a cloakroom and a utility room with useful side access.

To the first floor are four generously sized bedrooms, a family bathroom and ensuite to the master bedroom offering comfort and privacy.

Further benefits include gated access to the rear garden, an integral or attached garage (plot dependant) which is accessed via the attractive Tegula block paved driveway.  An ideal residence set in a serene and peaceful environment.

Please note, the images and floorplans shown are for illustration purposes and may not be an exact representation of the end property. Please speak to a Sales Executive for more details.

 

  • Open aspect with attached garage
  • Large kitchen/diner
  • 4 great sized bedrooms
  • Fully integrated kitchen with appliances
  • Garage with Tegula block paved driveway
  • uPVC anthracite coloured windows
  • Turfed gardens to the front and rear
  • A 10 year LABC warranty