Plot 59 – The Natland for sale


Olive Green View, Halton

Plot 59 enjoys an enviable, elevated position with views of the Lancashire countryside and a rear garden that isn’t overlooked. This home also benefits from:

  • A high specification with Silestone kitchen worktops included
  • Flooring included throughout
  • Plus, if you have a house to sell, Part Exchange is available!

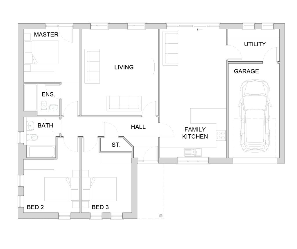
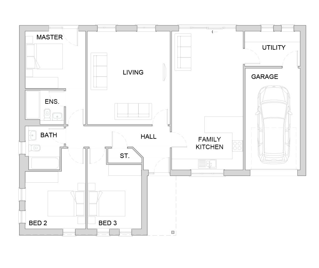
The Natland is an impressive 3-bedroom detached bungalow that benefits from an inspirational, modern layout as well as extra storage space in the integral garage.

This spacious, modern home boasts an open plan kitchen/dining area featuring a breakfast bar and stylish sliding doors that open out onto the patio and turfed garden, perfect for hosting.

A unique feature in this home is the master bedroom boasting a stylish en-suite as well having access to the garden. Plus there’s a generous lounge with two large windows that flood the room with natural light, a family bathroom, storage, and utility.

This home features full height anthracite grey windows creating bright and airy spaces as well as adding interest to an already beautiful exterior. The Natland is finished with a mixture of traditional stone and brick providing a characterful and timeless home in keeping with the idyllic location. Plus, there is a block paved driveway and turfed gardens to the front and rear of the property.

Please note, the images and floorplans shown are for illustration purposes and may not be an exact representation of the end property. Please speak to a Sales Executive for more details.

  • 3 bedroom bungalow
  • Master bedroom with en-suite
  • Large open plan kitchen/diner with living space
  • Fully integrated kitchen with appliances
  • Utility
  • Integral garage with Tegula block paved driveway
  • uPVC anthracite coloured windows
  • Turfed gardens to the front and rear
  • A 10 year LABC warranty