The Sedgwick D


The Sedgwick D

The Sedgwick is a striking and spacious 3-bedroom detached property; the perfect family home, made for modern living.

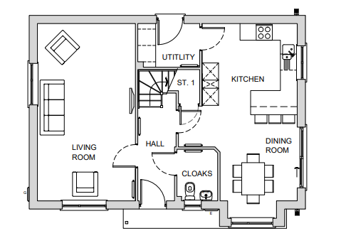
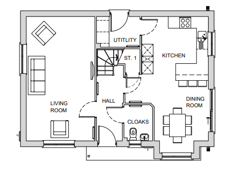
The stunning open plan kitchen/dining area fills the length of the home and boasts a modern breakfast bar that can accommodate three stools, perfect for relaxed family breakfasts. There’s also a beautiful bay window overlooking the front of the property. The sliding doors to the patio and turfed rear garden further extend the space, ideal for hosting in the warmer months.

The Sedgwick benefits from a large dual aspect lounge, providing a light and airy space with plenty of room for growing families . There is also a welcoming hallway, utility room and downstairs WC.

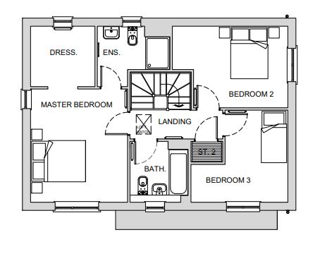
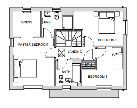
A winding staircase leads upstairs to three spacious bedrooms and family bathroom, including a luxurious master bedroom featuring a dedicated dressing area and stylish en-suite with large shower.

The distinctive exterior of this home features a blend of render and panelling with a porch area and anthracite grey windows for a characterful and timeless aesthetic in keeping with the idyllic surroundings. The Sedgwick includes a block paved driveway, detached garage and turfed gardens to the front and rear of the property.

Please note, the images and floorplans shown are for illustration purposes and may not be an exact representation of the end property or plot. Please speak to a Sales Executive for more details.

  • Open plan kitchen with feature bay window
  • Sliding doors to the turfed rear garden
  • Spacious dual aspect lounge
  • Handy utility room
  • Dressing area and en-suite to Master Bedroom
  • Detached single garage with Tegula block paved driveway