Plot 62 – The Natland sold


Olive Green View, Halton

This home is situated within Olive Green View, an exquisite new phase of the highly regarded Bowland Fold development in Halton. Boasting a truly impressive and elevated position, the homes located in Olive Green View enjoy breath taking views of the Trough of Bowland, Lancaster and Morecambe Bay.

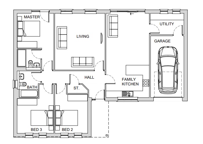
The Natland is an impressive 3-bedroom detached bungalow with striking stone features and a modern layout, as well as extra storage space in the integral garage.

This spacious, modern home boasts an open plan kitchen/dining area featuring a breakfast bar and stylish sliding doors that open out onto the patio and turfed garden, perfect for hosting.

Plus there’s a generous lounge with two large windows that flood the room with natural light, a master bedroom with stylish en-suite, family bathroom, storage, and utility.

Plot 62 is ideally situated in an elevated position with a large garden and open aspects to the rear of the property where you can enjoy the array of beautiful views.

This home features full height uPVC anthracite grey windows creating bright and airy spaces as well as adding interest to an already beautiful exterior. The Natland is finished with a mixture of traditional stone and brick providing a characterful and timeless home in keeping with the idyllic location. Plus, there is a block paved driveway and turfed gardens to the front and rear of the property.

Please note, the images and floorplans shown are for illustration purposes and may not be an exact representation of the end property. Please speak to a Sales Executive for more details.

 

  • 3-bedroom bungalow
  • Master bedroom with en-suite
  • Large open plan kitchen/diner with living space
  • Fully integrated kitchen with appliances
  • Integral garage with Tegula block paved driveway
  • uPVC anthracite coloured windows
  • Turfed gardens to the front and rear
  • A 10 year LABC warranty